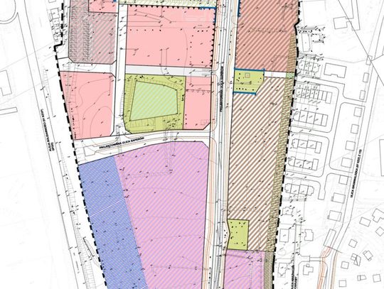
Opis punktów oznaczonych na mapce (kliknij na obrazek wyżej, by go powiększyć):
1) Pl. Patriotów
Istniejący obecnie pl. Patriotów wraz z Pomnikiem Polskich Patriotów stanowiłby północno-zachodnią zieloną granicę strefy, która upamiętniałaby obecność Wojska Polskiego na tym terenie.
2) Strefa usługowa
Północna część terenu miałaby zostać przeznaczona na szeroko pojęte usługi. Jakiego rodzaju? Tego dowiemy się dopiero wówczas, gdy do Urzędu Miejskiego w Tczewie zgłoszą się inwestorzy z konkretnymi ofertami. Jedno jest pewne – miasto chciałoby w tym miejscu stworzyć zabudowę usługową wraz z agorą, która nadawałaby tej strefie miejskiego charakteru. Władze Tczewa nie chcą, by ta przestrzeń służyła jedynie za miejsca pracy – chcą, by to miejsce żyło również popołudniami. Nie wiadomo co dalej z budynkiem koszar. Wszystko zależy od potencjalnego inwestora – albo wykorzysta istniejący obiekt, albo wybuduje zupełnie nowy.
3) Strefa drzew
W centralnym punkcie strefy usługowej mieszkańcy mogliby odpocząć w cieniu drzew, które istniały już za czasów jednostki wojskowej. Zieleń ma zostać zachowana i w tym miejscu wyeksponowana.
4) Zbiornik wodny
Pomiędzy strefą usługową a przemysłową mieszkańcy mogliby nacieszyć się widokiem zbiornika wodnego. Powstał on za czasów funkcjonowania jednostki wojskowej i pełnił rolę retencyjną, a także służył do ćwiczeń wojskowych. Władze Tczewa chcą ten zbiornik zachować i wkomponować w nowoczesny układ Nowego Centrum Tczewa.
5) Przemysł nieuciążliwy
Południową część dawnej jednostki wojskowej prawdopodobnie będzie stanowić strefa przemysłu nieuciążliwego, która znajdowałaby się po obu stronach nowej ul. Saperów. Tuż przy sąsiedztwie al. Solidarności, czyli od strony zachodniej, preferowana będzie zabudowa wyższa. Jakiego typu firmy zechcą wybudować w tym miejscu swoje zakłady? Przekonamy się w przyszłości.
6) Południowe skrzyżowanie
Nowa ul. Saperów będzie krzyżować się z głównymi ulicami tylko w dwóch miejscach – na północy i południu. Południowe skrzyżowanie miałoby formę ronda, łączącego ul. Saperów z ul. Kazimierza Wielkiego i ul. Mieszka I. By było to możliwe, będzie musiała powstać odnoga ul. Mieszka I. Planowane rondo będzie znajdować się w bliskim sąsiedztwie skrzyżowania al. Solidarności z al. Kociewską.
7) Nowa ul. Saperów
Obecna ul. Saperów to prowizoryczna ulica, służąca przez wiele dziesięcioleci tylko i wyłącznie do obsługi dawnej jednostki wojskowej. W przyszłości ma się to zmienić. Ul. Saperów zostanie wybudowana na nowo i będzie miała charakter zbiorczej ulicy Nowego Centrum Tczewa. To właśnie dzięki niej dojedziemy do każdego sklepu, zakładu czy też domu, ponieważ będą od niej odchodziły boczne ulice lokalne. Ul. Saperów będzie towarzyszyła równoległa ścieżka rowerowa.
8) Strefa mieszkaniowa
W tym miejscu ma powstać strefa mieszkaniowo-usługowa z naciskiem na zabudowania 2 lub 3-kondygnacyjne. To tu powstaną nowe mieszkania dla tczewian, którym będą towarzyszyły np. sklepy lub innego rodzaju punkty usługowe. Na wschodzie tej strefy miałby powstać pas zieleni izolacyjnej, dzięki której teren ten zostałby oddzielony od istniejących już zabudowań os. Kolejarz.
9) Parkingi
Na północnym-wschodzie Nowego Centrum Tczewa, w miejscu obecnego zagłębienia, koncepcja zakłada powstanie strefy parkingowej. Teren zostałby wyrównany i stanowiłby bazę wypadową dla osób odwiedzających Nowe Centrum Tczewa.
10) Północne skrzyżowanie
Aby dojechać do Nowego Centrum Tczewa, będzie można skorzystać nie tylko z dojazdu od strony południowej, ale i północnej. Ul. Saperów nie będzie krzyżować się z ul. Wojska Polskiego jak w chwili obecnej. Skrzyżowanie zostanie przesunięte nieco na wschód, umożliwiając połącznie nie dwóch, a trzech ulic – ul. Saperów, ul. Wojska Polskiego i al. Zwycięstwa. Aby nie spowodować zakorkowania się ul. Wojska Polskiego, władze miasta planują poszerzenie tej ulicy dodając do pasa jazdy na wprost osobne pasy do skrętu w prawo i skrętu w lewo.
Czytaj również w Gazecie Tczewskiej z 5 lutego.
![Jak dojedziemy do Nowego Centrum Tczewa ? [KONCEPCJA] Jak dojedziemy do Nowego Centrum Tczewa ? [KONCEPCJA]](https://static2.tczewska.pl/data/articles/xl-jak-dojedziemy-do-nowego-centrum-tczewa-koncepcja-1661940262.jpg)












Napisz komentarz
Komentarze